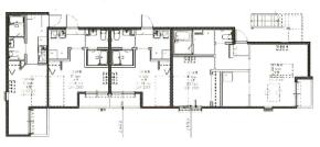
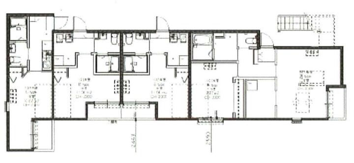
アパート - 足立区「綾瀬」駅 徒歩13分
投資用物件
| 所在地 | 東京都足立区東綾瀬1丁目 | 交通 | 東京メトロ千代田線 「綾瀬」駅 徒歩13分 |
|---|---|---|---|
| 土地権利 | 所有権 | 地目 | 宅地 |
| 土地面積 | 211.51m² | 私道面積 | |
| 建物構造 | 木造 | 階建/所在階 | 地上3階 |
| 建物面積 | 299.93m² | バルコニー面積 | |
| 専有面積 | 間取り | ||
| 築年月 | 2023年4月 | 総戸数 | 14戸 |
| 都市計画 | 市街化区域 | 用途地域 | 第一種住居地域 |
| 建ぺい率/容積率 | 60%/300% | 接道 | 南側公道 |
| 管理費 | 施工会社 | ||
| 修繕費 | 管理会社 | ||
| 現況 | 賃貸中 | 管理形態 | |
| 引き渡し時期 | 相談 | 取引態様 | 仲介 |
| 設備 | オートロック , 宅配ボックス , プロパンガス | ||
| 特記事項 | 準防火地域、第3種高度地区、 | ||
| 備考 | インターネット | ||
| 物件番号 | 01304 | 情報登録日 | 2025年10月05日 |



















