倉庫 - 春日部市「一ノ割」駅
事業用物件
| 所在地 | 埼玉県春日部市2-2-5 | 交通 | 東武伊勢崎線 「一ノ割」駅 停歩33分 |
|---|---|---|---|
| 土地権利 | 所有権 | 地目 | |
| 土地面積 | 826.49m² | 私道面積 | |
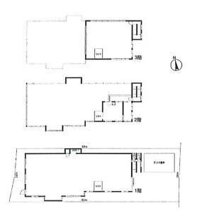
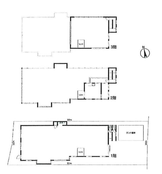
| 建物構造 | 鉄骨造 | 階建/所在階 | 地上3階 |
| 建物面積 | 662.68m² | バルコニー面積 | |
| 専有面積 | 間取り | ||
| 築年月 | 1985年9月 | 総戸数 | |
| 都市計画 | 市街化区域 | 用途地域 | 工業地域 |
| 建ぺい率/容積率 | 60%/200% | 接道 | 南東8m公道 |
| 管理費 | 施工会社 | ||
| 修繕費 | 管理会社 | ||
| 現況 | 空室 | 管理形態 | |
| 引き渡し時期 | 相談 | 取引態様 | 仲介 |
| 設備 | |||
| 特記事項 | プロパンガス、個別浄化槽、都市ガス、本下水接続可、現況有姿、 | ||
| 備考 | |||
| 物件番号 | 01309 | 情報登録日 | 2025年10月25日 |



















