住居付店舗 - さいたま市緑区「東浦和」駅 徒歩7分
投資用物件
| 所在地 | 埼玉県さいたま市緑区東浦和4丁目 | 交通 | JR武蔵野線 「東浦和」駅 徒歩7分 |
|---|---|---|---|
| 土地権利 | 所有権 | 地目 | |
| 土地面積 | 117.7m² | 私道面積 | |
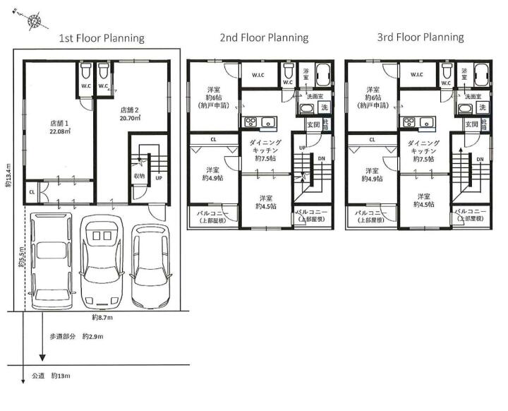
| 建物構造 | 木造 | 階建/所在階 | 地上3階 |
| 建物面積 | 170.57m² | バルコニー面積 | |
| 専有面積 | 間取り | ||
| 築年月 | 2017年12月 | 総戸数 | 4戸 |
| 都市計画 | 市街化区域 | 用途地域 | 第二種中高層住居専用地域 |
| 建ぺい率/容積率 | 60%/200% | 接道 | 南西約13m公道 |
| 管理費 | 施工会社 | ||
| 修繕費 | 管理会社 | ||
| 現況 | 賃貸中 | 管理形態 | |
| 引き渡し時期 | 相談 | 取引態様 | 仲介 |
| 設備 | |||
| 特記事項 | カースペース並列3台、高度地区20m、22条区域、景観法 | ||
| 備考 | |||
| 物件番号 | 01314 | 情報登録日 | 2025年12月17日 |



















